Work
About
People
Contact
Work
About
People
Contact
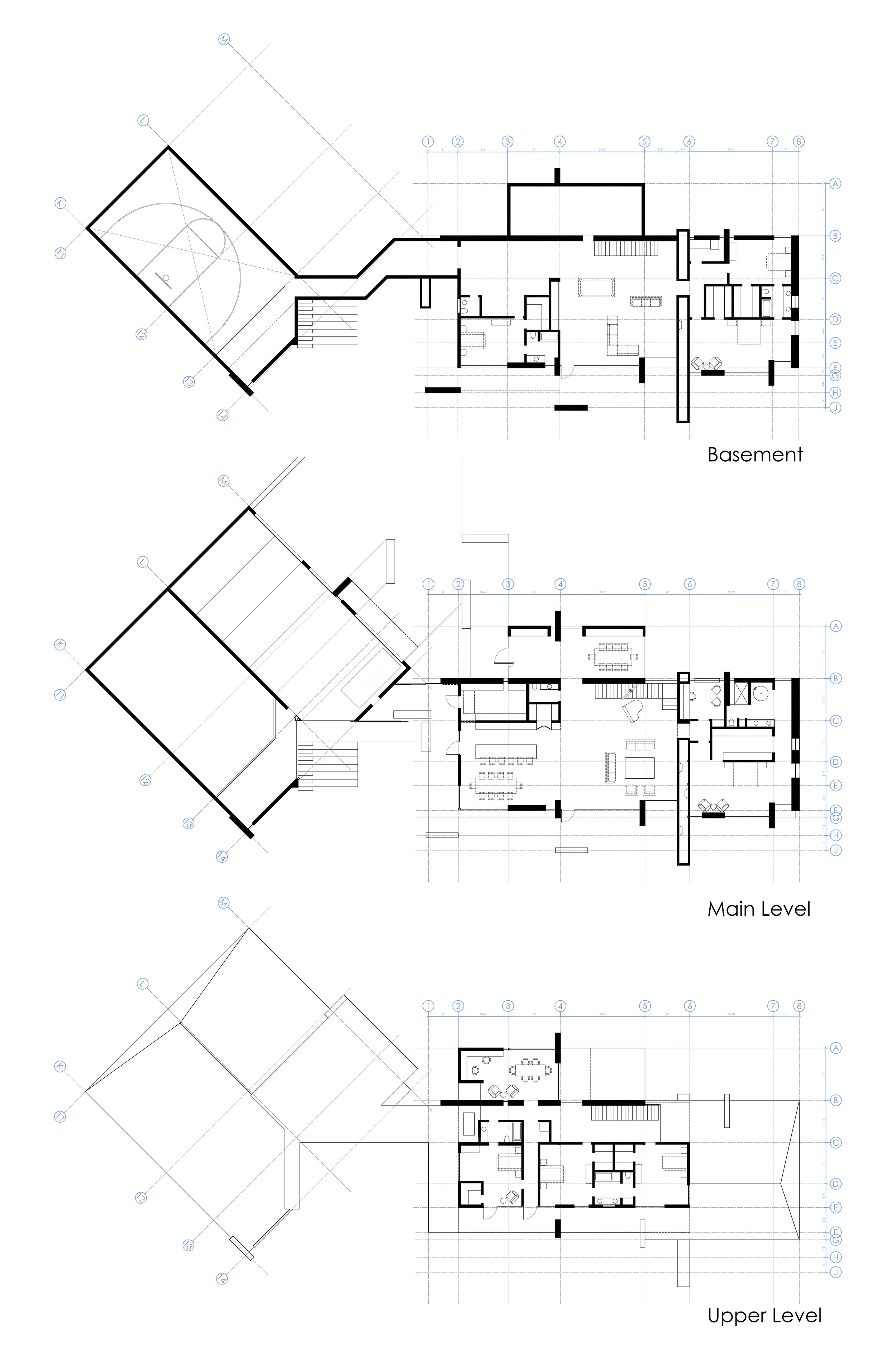
Colorado Residence
Colorado Residence
All
Colorado Residence
Salt Lake City Remodel
Aunt Loretta's Daycare
Colorado Residence
Salt Lake City Remodel
Aunt Loretta's Daycare